


















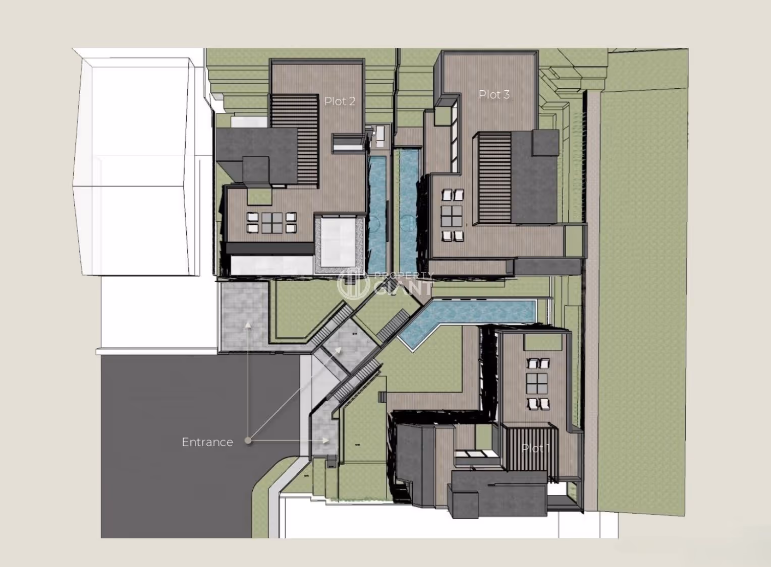
A rare architectural release, within Sunset View comprises 3 extraordinary detached yet freehold bungalows, each a statement of scale, restraint, and refined detailing. Spanning five thoughtfully tiered levels with private lift access, these homes are crafted for those who value quiet grandeur and purposeful design. Expansive indoor volumes open seamlessly to curated outdoor spaces, including a private 14m lap pool, landscaped deck, and an open-to-sky rooftop terrace. Material is meticulously selected giving premium finishing all throughout, offering a residence that balances clarity of form with enduring craftsmanship. Reserved for the few, this is the property where presence is felt without ever being declared.
Set in the tranquil enclave of Sunset View, this modern residence is crafted by acclaimed architect Edmund Ng, founder of Edmund Ng Architects. Known for his minimalist and timeless designs, Ng masterfully blends natural light, texture, and space to create homes that feel both elegant and deeply livable. The Sunset View home reflects his belief that “a home is not just a shelter, it shapes our well-being,” offering a serene balance of art, nature, and modern comfort. Through the Sunset View residence, Edmund Ng once again reaffirms his position as one of Singapore’s most respected architects, blending light, landscape, and life into a single, enduring masterpiece.
Ignite your rhythm in a neighbourhood that radiates energy and possibility. Where spontaneous moments meet curated convenience, and the city’s vibrant pulse plays backdrop to your personal story.
Craving a retail fix, gourmet indulgence, or a fun night out? You’re surrounded by ;
And when it's time to slow the tempo, your environment evolves into a sanctuary. Either a rejuvenating stroll or a short stop for daily essentials, all are close at hand ;
More than a place to reside, this is a space to thrive. With bold design, vibrant surroundings, and a lifestyle that moves with you — Sunset View isn’t just a home. It’s your everyday launchpad for everything life has to offer.
| Address | |
|---|---|
| Tenure | Freehold |
| Completion Year (TOP) | |
| Site Area | |
| Total Units | |
| Total Floors |
Disclaimer: 1) All land and built up areas are based on approximate measurements and are subject to final survey and shall not form part of any offer or contract or constitute any warranty by the salesperson and shall not be regarded as statements or representations of fact. 2) Images & floorplans shown are for illustration purposes and may not represent the actual property
