
























182B Lornie Road (SOLD)
182A Lornie Road (SOLD)
182D Lornie Road (SOLD)
182 Lornie Road (SOLD)
182C Lornie Road (SOLD)
Within 1km:
Within 2km:
| Address | |
|---|---|
| Tenure | Freehold |
| Completion Year (TOP) | |
| Site Area | |
| Total Units | |
| Total Floors |
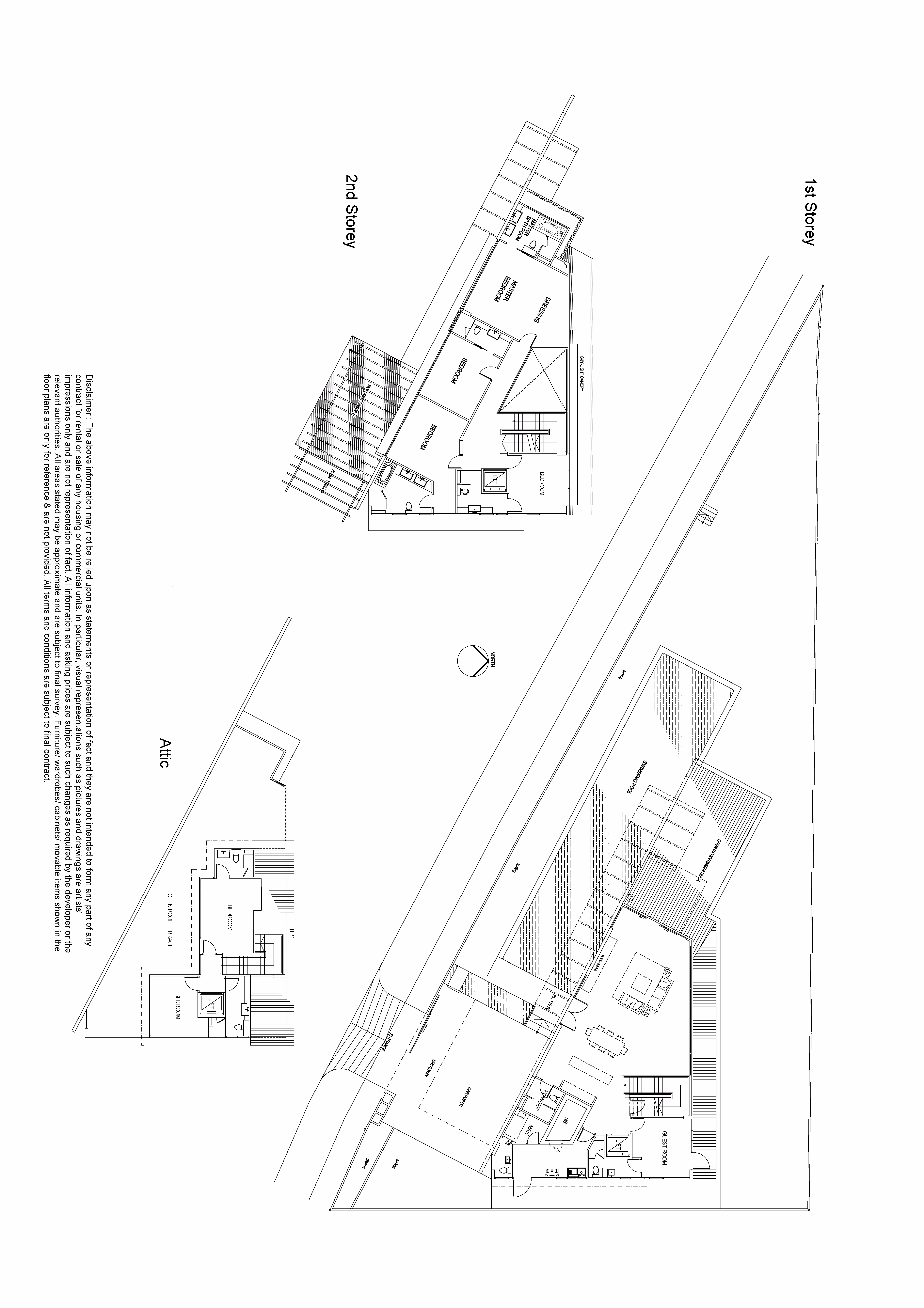
Disclaimer: 1) All land and built up areas are based on approximate measurements and are subject to final survey and shall not form part of any offer or contract or constitute any warranty by the salesperson and shall not be regarded as statements or representations of fact. 2) Images & floorplans shown are for illustration purposes and may not represent the actual property